Downtown Expansion

Downtown Expansion

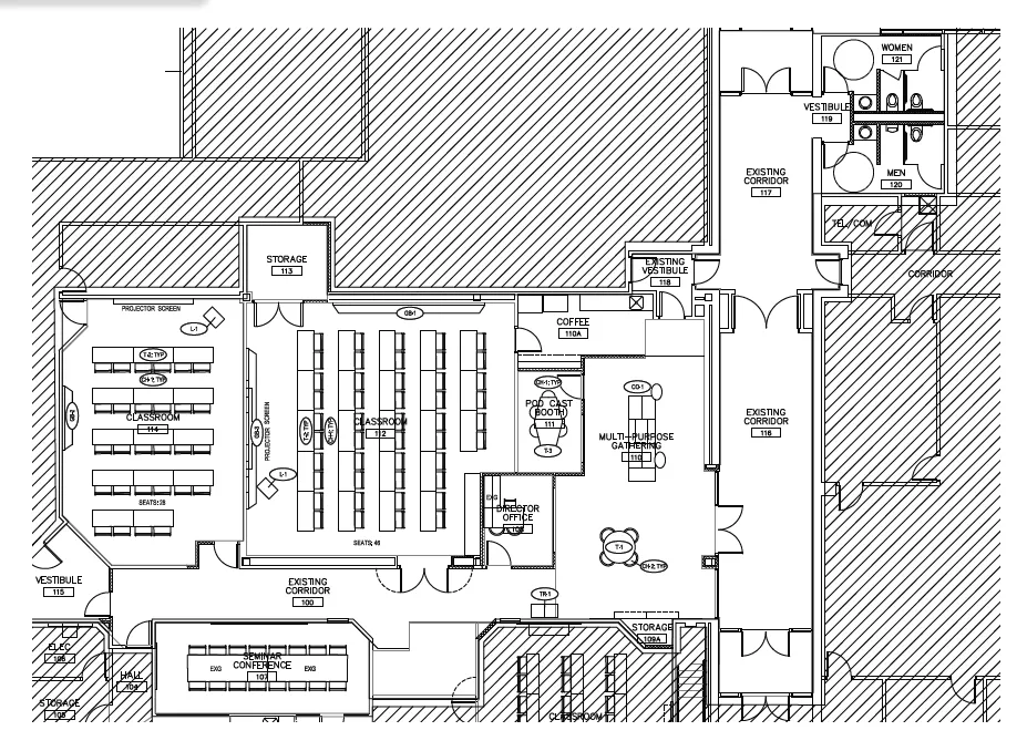
Floorplan of Downtown UCCS.

UCCS Downtown has been such a success that we are expanding! This "phase 2" expansion of the Downtown space will include adding 2 new classrooms, a multi-purpose gathering area, a pod cast booth, a new kitchenette and coffee area, a new office, and a more refined retail space. Design and floor plan layout are in their final stages, and we hope construction will start in the upcoming summer months. To cover the new space, the Wireless team will anticipate installing 4 new wireless access points.